Zahn Periodontal

Parabola Architecture + Development pioneers "neuroscience-optimized" spaces that reduce patient anxiety through biophilic elements, balanced lighting, and geometric forms that promote calm.

As real estate land value plunged in 2008, it was very challenging to obtain financing for a medical office development on a small site. As a result of direct conversations between the lender’s appraiser and the architect, lower level medical lease space was added to take advantage of a sloping site, and provided an increase in appraised value of $90,000. Adding lower level lease space was highly beneficial for the Owner. The increased appraised value of the real estate asset was higher than anticipated construction cost; therefore, the bank was pleased to approve a construction loan for the Owner.

Zahn Periodontal

Parabola Architecture + Development pioneers "neuroscience-optimized" spaces that reduce patient anxiety through biophilic elements, balanced lighting, and geometric forms that promote calm.

As real estate land value plunged in 2008, it was very challenging to obtain financing for a medical office development on a small site. As a result of direct conversations between the lender’s appraiser and the architect, lower level medical lease space was added to take advantage of a sloping site, and provided an increase in appraised value of $90,000. Adding lower level lease space was highly beneficial for the Owner. The increased appraised value of the real estate asset was higher than anticipated construction cost; therefore, the bank was pleased to approve a construction loan for the Owner.

  • Highly Efficient Periodontal Office Design Accommodates Future Expansion

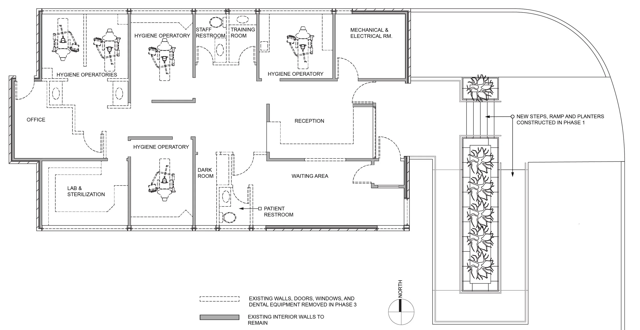
    The efficiently designed periodontal office is located on the main floor. Two Surgical Suites and (4) Hygiene Operatories are strategically positioned along the North side of the building to provide optimal natural daylighting benefits. The Sterilization Area is centrally located for easy access for all Operatories and Surgical Suites.

    Surgical Suites (3 & 4) are designed for future use. The areas are pre-plumbed from the floor below, and currently accommodate a Staff Lounge and Dr. Zahn’s Private Office & Restroom. As Dr. Zahn’s business model expands, minor renovation will be required to build-out Surgical Suites (3 & 4) without requiring building expansion or additional parking.

  • The Lower Level Provides Rental Income For Owner

    Currently, the Lower Level is leased-out to a private client to provide rental income. As business expands, the Staff Lounge and Dr. Zahn’s Office will be relocated to the Lower Level to accommodate new Surgical Suites (3 & 4) on the Main Level. A sound-proofing system was used to eliminate noise between floors.

  • The existing ramp from parking lot to front door was composed of brick pavers, arranged in a circular walkway layout. The ramp did not meet Michigan Barrier Free requirements for the following reasons:

    • No handrail

    • Ramp exceded 1:12 rise ratio

  • Underground storm water detention was modified to above ground rain gardens to significantly reduce site construction costs by $40,000.

Conceptual Design - Interior & Exterior

Design solutions can be challenging for clients to fully visualize. To address this, multiple 3-D computer design concepts were developed, offering the Owner a clear and comprehensive way to understand the intent behind each design element. These visualizations also demonstrated how individual solutions integrate cohesively, providing a holistic view of the overall project. This approach enhances communication, reduces misunderstandings, and facilitates informed decision-making throughout the design process.